私たちはいつも不思議の中にいる。
ザ・材木座。
ザ・ザイモクザ。
ザザ。
ザが続く。
ザが続くといえば、キンザザ。
挨拶は、空。
参考(挨拶は全て「QOO」)
不思議惑星キンザザ
波は、いつも同じではない。
それでも毎朝、同じ顔でやって来る。


材木座に、専用通路(3Mの幅広)を従えた家がある。
道から十数メートル、敷地へ続く細い導線。
それだけのことが、なぜかひどく重要な気がする。
通路の先に、土地がある。
当然そうなる。
この通路には、車が3台くらい停まるかもしれない。
フィアット500なら4台停まるかもしれないし、
でもそんな事はしないだろうとも思う。



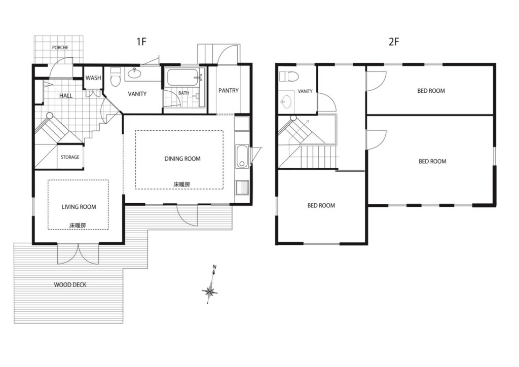
リビングは、庭から差し込む明るい光に満たされている。
冬、リビングの床は温かい。
床暖房を追加したからエアコンはいらないかもしれない。
海まで、歩いて三分。
ボードを持っていける距離感。
事実だけ並べると、こうなる。
でも事実は、この場所の半分しか言っていない。
残りの半分は、
朝、理由もなく外へ出たときに、
すでに光の中にいる、という感覚だ。
支度をした記憶がない。
気づいたら砂の上にいる。(まるでキンザザ)
そういうことが、ここでは起きる。(驚)
フワッと海に運ばれていく身体。(夢)



所有する、という言葉がある。
たぶん、逆だ。(何が?)
波に、土地に、通路の夢に、太陽と月に、
少しずつ所有されていく。
それがここでの暮らしの、正体だと思う。
風と自らの存在に身をまかすという快楽。




でもそれは、この場所があなたに
最初に求めてくる、対話のランガージュだ。
材木座は、鎌倉の海に開かれた場所にある。
生活がこの場所になる。
毎朝、波に会いにいく。(出来ればクウをやる)
波は、昨日とは別の顔で挨拶する。
その未知と一緒に暮らすことを、ここでは豊かさと呼んでみる。



不足を感じる人に、訪れて欲しい場所。
THE・材木座。
鎌倉駅まで、徒歩18分。
そば処土手まで、徒歩5分。
という事は、
ART&SCIENCE Zaimokuza Kamakuraまで徒歩5分。

土地の物件でありながら、家も十分楽しめる事をここに誓います。
ここから、世界と接続します。
新しくみずみずしい視界を獲得するために。
ちなみに、建物の内見可能です。
是非。
Halasho.
| 物件種別 | 土地 |
|---|---|
| 価格 | 9200万円 |
| 所在 | 鎌倉市材木座5丁目 |
| 交通 | JR横須賀線「鎌倉」駅 徒歩18分 江ノ島電鉄「和田塚」駅 徒歩12分 |
| 土地面積 | 184.20㎡ |
| 土地面積(坪) | 55.72坪 |
| 建ぺい率 | 60% |
| 容積率 | 200% |
| 土地権利 | 所有権 |
| 地目 | 宅地 |
| 建物構造 | 木造スレート葺2階建 |
| 現況 | 居住中 |
| 築年月 | 平成12年2月2日 |
| 施設 | 公営水道, 本下水 |
| 間取り | 3LDK |
| 都市計画 | 市街化区域 |
| 用途地域 | 第一種住居 |
| 法令制限 | 風致地区, 宅地造成等規制区域, 景観法, 文化財保護法 |
| 取引態様 | 仲介 |
| 引渡日 | 相談 |
| 備考 | <古家> 構造:木造2階建 建物面積:110.01㎡ 築年:平成12年2月2日 |
| 情報登録日 | 2026/04/12 |
お問い合わせ
◆ お電話でのお問い合わせ
046-845-9224
◆ メールでのお問い合わせ
お問い合わせフォームへ >












